Highlights der Immobilie auf einen Blick: – 2-Zimmer-Wohnung mit ca. 57,29 m² Wohnfläche im Erdgeschoss – Helle, freundliche Räume mit schönem Ausblick – Großzügige Terrasse am Garten – ideal für Sonnenstunden, Pflanzen oder gemütliche – Auszeiten – Garten mit eigenem Zugang und kleinem Gartenhäuschen – Gut durchdachter Grundriss mit funktionaler Raumaufteilung – Geräumiges Wohnzimmer und ein […]
COMING SOON – Frisch sanierte 2-ZKB mit Garten und Tiefgarage in ruhiger Lage – Provisionsfrei
Kaufpreis & Nebenkosten
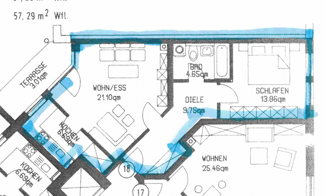
Flächenaufstellung
Ausstattungsmerkmale
Ausstattung
- Luxuriöses Ambiente mit durchdachtem Design und hochwertiger Ausstattung
- Großzügiger Eingangsbereich mit Platz für Garderobe
- Edler Vinylboden in Eichenoptik in den Wohnräumen
- Hochwertige Fliesen im Badezimmer
- Regendusche im Badezimmer
- Handtuchheizkörper
- Große Fenster mit Rollläden für eine warme Atmosphäre und stilvolle Akzente
- Schöne Terrasse samt Garten für entspannte Stunden im Freien
- Eigenes Gartenhäuschen für Werkzeuge und Ähnliches
- Durchdachte Beleuchtung in der gesamten Wohnung
- Separates Kellerabteil für zusätzlichen Stauraum
- Tiefgaragenstellplatz für komfortables und sicheres Parken
Lage
Die Wohnung befindet sich in einer attraktiven Wohnlage an der Leharstraße in Augsburg, die urbanes Leben mit ruhiger Wohnqualität harmonisch verbindet. Die Einheit liegt im Erdgeschoss eines gepflegten Mehrparteienhauses aus dem Jahr 1992 und ist bequem über einen Aufzug erreichbar – ein besonderer Komfort im Alltag.
Die Erdgeschosslage bietet Ihnen einen angenehmen, unkomplizierten Zugang sowie eine schöne Terrasse, die zum Entspannen im Freien einlädt. Gleichzeitig genießen Sie ein ruhiges Wohnumfeld mit hoher Privatsphäre.
Die Anbindung an den öffentlichen Nahverkehr ist hervorragend: Eine Haltestelle befindet sich nur wenige Gehminuten entfernt, sodass Sie alle Stadtteile Augsburgs schnell erreichen. Auch die A8 und die B17 sind in wenigen Minuten erreichbar, was die Lage besonders attraktiv für Berufspendler macht. Der Augsburger Hauptbahnhof ist schnell erreichbar und bietet eine direkte Verbindung nach München – ideal für Pendler und Vielreisende.
In unmittelbarer Umgebung finden Sie zahlreiche Einkaufsmöglichkeiten wie Supermärkte, Apotheken und weitere Geschäfte des täglichen Bedarfs. Zudem lädt eine Auswahl an Restaurants, Cafés sowie Sport- und Freizeitangeboten in der Nähe zur aktiven Freizeitgestaltung ein.
Die Lage an der Leharstraße überzeugt durch eine gelungene Kombination aus guter Infrastruktur, urbaner Nähe und angenehmer Wohnqualität – ideal für Paare, Singles oder Berufspendler, die komfortables Wohnen in attraktiver Lage schätzen.
Sie sehen gerade einen Platzhalterinhalt von Google Maps. Um auf den eigentlichen Inhalt zuzugreifen, klicken Sie auf die Schaltfläche unten. Bitte beachten Sie, dass dabei Daten an Drittanbieter weitergegeben werden.
Mehr InformationenEnergieeffizienzklasse
Weitere Informationen
Die Limmer & Kreis Immobilien GmbH ist Eigentümer der Wohnung und kein Makler.
Beim Erwerb der Immobilie fällt für Sie folglich keine Provision an.
Weitere attraktive Angebote finden Sie auf unserer Internetseite unter:
https://limmer-kreis-immobilien.de
Impressum
Angaben gemäß § 5 TMG
Limmer & Kreis Immobilien GmbH
Haunstetter Straße 188
86161 Augsburg
Vertreten durch:
Moritz Limmer
Felix Limmer
Thomas Kreis
Kontakt:
Mobil: 0162-9305603
Email: info@limmer-kreis-immobilien.de
Registereintrag
Registergericht: Amtsgericht Augsburg
Registernummer: HRB 37328
Redaktionell Verantwortlicher:
Felix Limmer
EU-Streitschlichtung:
Die Europäische Kommission stellt eine Plattform zur Online-Streitbeilegung (OS) bereit:
https://ec.europa.eu/consumers/odr.
Unsere E-Mail-Adresse finden Sie oben im Impressum.
Disclaimer
Das Impressum gilt auch für folgende Social Media Profile:
Instagram
Makleranfragen unerwünscht!
Makleranfragen unerwünscht! Nach § 7 UWG sind unaufgeforderte Kontaktaufnahmen durch Makler ohne ausdrückliche Einwilligung des Empfängers verboten!
